Sea view apartment Sitges
Spectacular duplex penthouse to be renovated in the Aiguadolç marina, completely exterior facing in all its rooms, with spectacular views of the mediterranean sea and the beach.
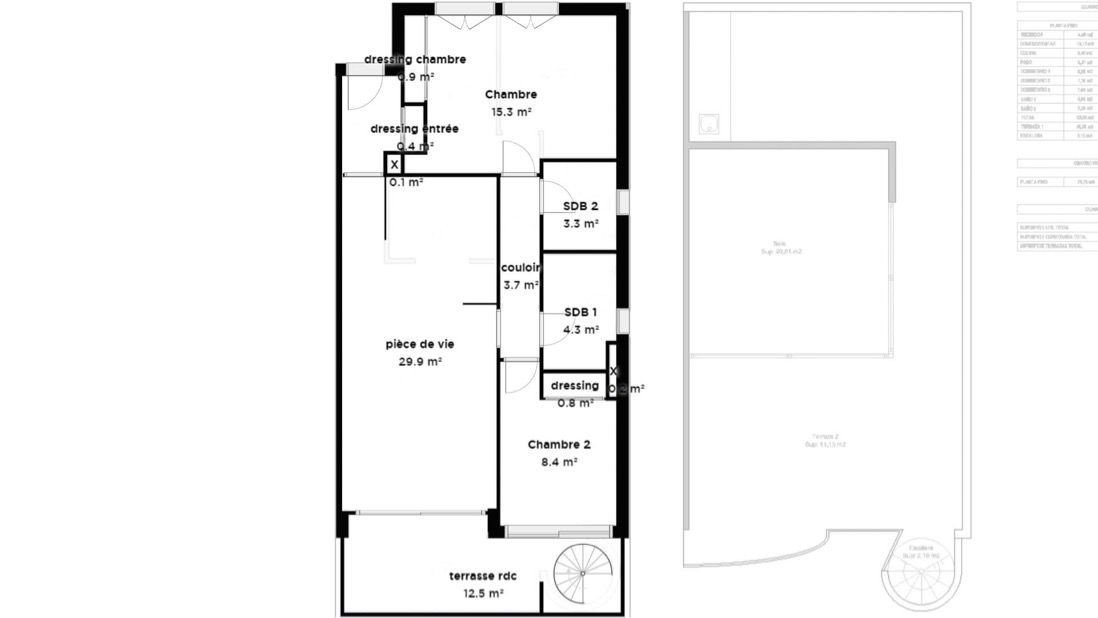
In the 84.11 m2 first floor, we find a hall with a walk-in closet, & through a short hallway we access a space in which to install a magnificent living room with an open-plan kitchen with access to a 13.63 m2 terrace with incredible and absolutely clear views of Aiguadolç beach and the marina.
On the same floor we find 3 bedrooms, one of them double with an en-suite bathroom and access to the same 13.62 m2 terrace that connects to the living room from the outside, allowing us to enjoy sleeping with the sound of the sea and waking up with the sea breeze. Leaving this bedroom and through a passageway we find two more bedrooms, one double and the other single, as well as a full bathroom for these bedrooms and visitors.
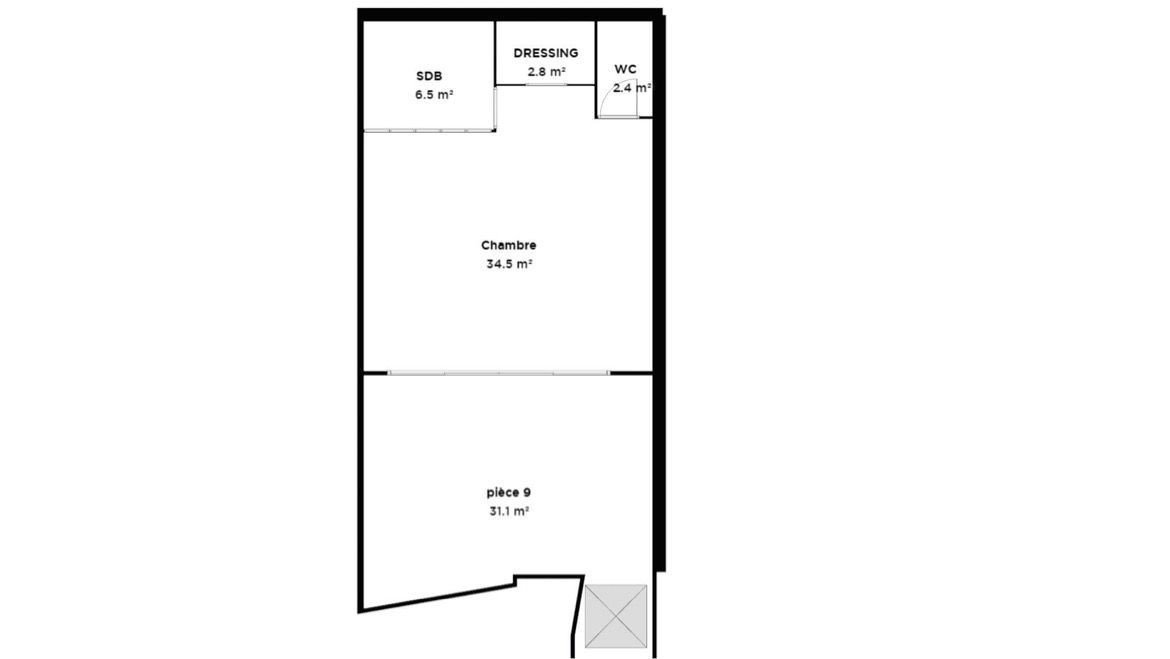
A discreet spiral staircase on the terrace leads to the second floor where we find a huge 75 m2 terrace where, in addition to spectacular views, we have a light construction that can be converted into a bedroom, games room, gym, etc. See decoration proposal.
Do not hesitate to come and visit. You will fall in love with this spectacular penthouse on the seafront, which is also located in an exclusive residential complex, equipped with two swimming pools, tennis courts, a bar-restaurant, a social club and a children’s playground.
On the ground floor of the building and for your convenience, the price includes a double parking space and a storage room.
A dream in the town of Sitges, with easy access to the connecting roads to Barcelona and the airport.
Do not hesitate to request a visit to personally assess this spectacular penthouse that you can turn into your home with privileged views of the sea.
Sorry, no records were found. Please adjust your search criteria and try again.
Sorry, unable to load the Maps API.



































































